Parduodam 203 kv.m., patalpos H.Manto g. Klaipėdoje. Galima išperkamoji nuoma
290000.00 €
Paskelbimo data 2026/02/19
- Vieta: Centras, Klaipėda, Klaipėda, Lietuva
Parduodam 203 kv.m., patalpos H.Manto g. Klaipėdoje. Galima išperkamoji nuoma.
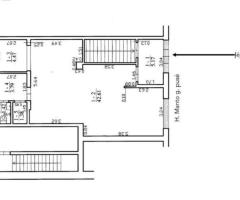
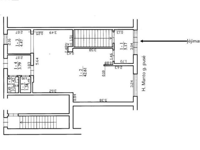
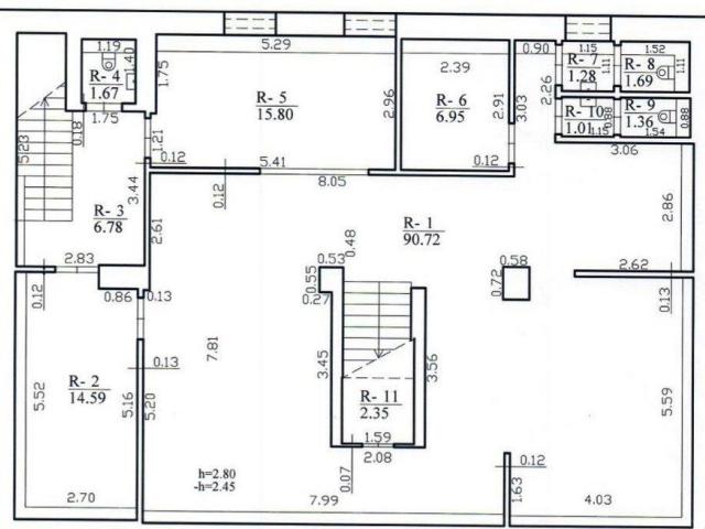
Patalpos per 2 aukštus:
Patalpų 1 aukštas turi vitrininį langą, erdvią lankytojų salę, 2 san. mazdus. Plotas: 61.43 kv.m.
Patalpos rūsyje yra uždaresnės su nuomininku. Plotas: 141.61 kv.m.
Išplanavimas funkcionalus, su erdvia lankytojų sale;
Gerai matoma vieta iš H.Manto g. pusės. Gausus praeinamas ir pravažiuojamas srautas;
Patalpos puikiai tinka investicijai - parduodamos su nuomininku.
Galima ir išperkamoji nuoma.
Kaina 290 000 eu.
Daugiau pasiūlymu Klaipėdoje ir informacijos +370 630 89808
Patalpos per 2 aukštus:
Patalpų 1 aukštas turi vitrininį langą, erdvią lankytojų salę, 2 san. mazdus. Plotas: 61.43 kv.m.
Patalpos rūsyje yra uždaresnės su nuomininku. Plotas: 141.61 kv.m.
Išplanavimas funkcionalus, su erdvia lankytojų sale;
Gerai matoma vieta iš H.Manto g. pusės. Gausus praeinamas ir pravažiuojamas srautas;
Patalpos puikiai tinka investicijai - parduodamos su nuomininku.
Galima ir išperkamoji nuoma.
Kaina 290 000 eu.
Daugiau pasiūlymu Klaipėdoje ir informacijos +370 630 89808
Susiję skelbimai
-
Parduodamos 65,78 kv.m. Patalpos – dirbtuvės Puodžių g. Pirmame aukšte175000.00 €Parduodama Klaipėda (Klaipėda) 2025/10/30Parduodamos 65,78 kv.m. Patalpos – dirbtuvės Puodžių g. Pirmame aukšte. Patalpos pilnai suremontuotos. Patalpos tinka grožio, foto studijai, ofisui ar prekybai. Plotai: bendro naudojimosi 1,17 koridorius 0,86 dirbtuvės 23,27 dirbtuvės 35,28 koridoriu... -
Parduodamos 365,77 kv.m. Patalpos Kavinės – prekybinės - ofiso Naujoji Uosto g.549000.00 €Parduodama Klaipėda (Klaipėda) 2025/09/04Parduodamos 365,77 kv.m. Patalpos Kavinės – prekybinės - ofiso Naujoji Uosto g, pirmame aukšte. Naujame biuru centre. Atskira apskaita vandens, elektros, šildymo ( reguliuojama ). 2 atskiri įėjimai, automatinės durys, vitrininiai langai, patalpų šild... -
Parduodamos 147 kv.m. Kavinės – baro – prekybinės patalpos Priestočio g.95000.00 €Parduodama Klaipėda (Klaipėda) 2025/07/11Parduodamos 147 kv.m. Kavinės – baro – prekybinės patalpos Priestočio g. Cokolinis aukštas. Matoma vieta. Nemokama stovėjimo aikštelė. Yra nuomininkai. Kaina 95 000 €. Galimas atsiskaitymas dalimis. Daugiau informacijos ir kitų pasiūlymu Klaipėdoje t...
