Parduodamos 365,77 kv.m. Patalpos Kavinės – prekybinės - ofiso Naujoji Uosto g.
549000.00 €
Paskelbimo data 2025/09/04
- Vieta: Centras, Klaipėda, Klaipėda, Lietuva
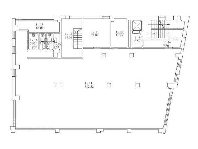
Parduodamos 365,77 kv.m. Patalpos Kavinės – prekybinės - ofiso Naujoji Uosto g, pirmame aukšte. Naujame biuru centre. Atskira apskaita vandens, elektros, šildymo ( reguliuojama ). 2 atskiri įėjimai, automatinės durys, vitrininiai langai, patalpų šildymas/šaldymas, vėdinimas.. Kaina 549 000 Eu. +PVM.
Telefonas pasiteirauti .: +370 630 89808
Telefonas pasiteirauti .: +370 630 89808
Susiję skelbimai
-
Išperkamoji nuoma Klaipėdoje ir Klaipėdos raj.369000.00 €Parduodama Klaipėda (Klaipėda) 2026/04/02Išperkamoji nuoma Klaipėdoje ir Klaipėdos raj. Naujojo Uosto g. Pirmame aukšte 371 – 160 – 211 kv.m. Kaina 1600 eu/kv.m. arba 1700 eu/kv.m. Antrame aukšte. Plotas 747 kv.m. Kaina 1500 eu./kv.m. H. Manto g. Pirmame aukšte su pusrusiu 203 kv.m. Kaina 1... -
370 kv.m. Sandėliavimo – Komercinės patalpos Klaipėdos raj. Klausmylių vs.360000.00 €Parduodama Klaipėda (Klaipėda) 2026/03/19Parduodamos 370 kv.m. Sandėliavimo – Komercinės patalpos Klaipėdos raj. Klausmylių vs. Ragaišio g. Galima pirkti su išperkamąja nuoma. Šalia autostrada, išasfaltuoti kelia, geras susisiekimas. Vanduo yra tiekiamas iš gręžinio, kuris bendras visai gat... -
Parduodamas Pastatas Klaipėdos centre Naujojo Uosto g. Plotas 844 kv.m.1500000.00 €Parduodama Klaipėda (Klaipėda) 2026/03/18Parduodamas Pastatas Klaipėdos miesto centre Naujojo Uosto g. Plotas 844 kv.m. 3 aukštai + mansarda. Sklypo plotas 9 arai. Pastato išorė pilnai renovuota. Vidus išgriautas ir paruoštas planuoti patalpas pagal Jūsų poreikius. Kaina 1 500 000 eu. Daugi...
